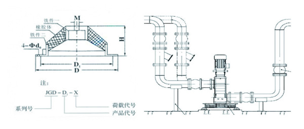
JGD型橡胶剪切隔振器是由合成橡胶和内置金属件组成,经过硫化成圆锥体,橡胶部分受剪切力、具有较大的变形范围和较低的固有频率。
工作温度范围在-5oC--+50oC,温度变化时,刚度也有所变化;阻尼比C/C0>0.07。
我厂生产的JGD型橡胶剪切隔振器选用优质天然橡胶,云象**标1#天然橡胶,含胶量达到46%左右,具有良好的减震和降噪效果。
JGD橡胶剪切橡胶减震器尺寸图:


橡胶减震器之所以如此被广泛的运用,是因为它有效的利用了橡胶的如下诸多特性:
(1)橡胶具有高弹性和黏弹性;
(2)与钢铁材质相比,橡胶的弹性变形很大,弹性模量很小;
(3)橡胶的冲击刚度大于动刚度,动刚度又大于静刚度,有利于减少冲击变形和动态变形;
(4)应力-应变曲线为椭圆形滞后线,其面积等于各个震动周期转变为热量的振能(阻尼),可通过配方设计调整之;
(5)橡胶为不可压缩性材料(泊松比为0.5);
(6)橡胶形状可以自由选择,硬度可以通过配方设计加以调整,可以满足不同方向的刚度和强度的要求。
载荷范围
载荷范围:245N-35040N;位移范围有二种:0-75mm、0-150mm;
结构
结构采用外挑管,消除音隙非常方便,且有螺纹防松设置;
连接管
长短连接管采用左右螺纹,安装距离詷量为40mm,且可现场调整,并设有螺纹防松设置;
间隙小
两端接口采用铰接,有效地消除了双向使用时的间隙;
载荷刻度
上刻度板上增设了载荷指示刻度,使调节载荷、工作载荷一目了然。
为了减少前面提到的路面对车辆的振动和冲击,需要弹簧把这些吸收振动和冲击的能量,弹簧在悬架中就是一个储能元件,但是暂时储存起来还不行,还要把这些对车辆乘坐舒适性和操纵稳定性不利的能量消耗掉,这是就轮到减振器登场了,液压式减振器的工作原理是当车架与车桥作往复相对运动,而活塞在缸筒内往复运动时,减振器壳体内的油液便反复地从一个内腔通过一些窄小的孔隙流入另一内腔,此时,孔壁与油液间的摩擦及液体分子内摩擦便形成对振动的阻尼力,使车身和车架的振动能量转化为热能,而被油液和减振器壳体所吸收,然后散到大气中。简单的说就是,将动能转化为热能。如果减振器在试验台连续运转几分钟,减振器贮油缸外壁会变得非常热,甚至烫手。
松江波纹减震器需换一个行吗?美标限位伸缩器是采用ANSI/ASMEB16.5法兰标准加工制作的限位伸缩接头或者传力接头产品,适用于输送海水、淡水、冷热水、饮用水、生活污水、原油、燃油…
丰田佳美用什么贝斯特减震器安装说明书减震器通过空气实验后,应进行气密性实验,实验介质为枯燥、洁净的空气,也可根据用户需求运用氮气或其它惰性气体,测验设备为电动泵(或…
开车如何保护kw电感减震器质量好吗?空气弹簧减震器承受载荷变化,系统固有频率大致不变,因此具有变刚度特性,所以在隔振装置设计时不必过重考虑设备重心承载能力大,自身重量…

产品介绍: JB型 弹簧减震器 本体材质分为.殊强化尼龙及球状铸铁。.殊强化尼龙材质为尼龙加..

GJ型社会在发展,环境在提高,对环境保护要求越来越高,由动力设备的管道引起的振动和噪声..

BE-120柴油机橡胶减震器 BE120 橡胶隔振器 该产品简单实用的 橡胶减震器 具有良好低频减震效果..

JBQ-900-A干式变压器空气减震器 Dry type transformer air shock absorber 上海 松夏减震器 有限公司官方网..
橡胶减震器更换要换一对吗?1、周边无明显震动;2、周边没有磁场影响;3、安裝场所路面整平,自然通风优良;4、禁止腐蚀化学物质试件的实验或存储;5、禁止...
奥迪用什么垂直减震器总成怎么样?市面上一般有空气弹簧减震器也叫(气垫减震器)、弹簧减震器、橡胶减震器三大类!三大类减震器的性能对比:1、就成...
设备弹簧减震器具备频率低、减震大一点的双重优势,及其钢弹簧原先的震幅。在文化休闲场所的应用:转速高的低音炮音箱音箱,音乐的穿透性特别强。传...
1.弹簧减震器外壳 壳体是减振元件的支撑。 长期的负载和安全性非常重要。 它对强度有很高的要求。 目前,市场上有两种会误导客户的趋势: 1.为...
捷达后减震器拆装方向不灵了咋办?大多数波纹减震器的工作温度在400℃以下,碳素结构钢、低合金结构钢和奥氏体等材料能够胜任。减震器的使用寿命...
厦门威朗15s减震器平面轴承怎么换?减振器的检测办法有哪些?减振器减振性能的好坏,要经过减振实验来审定。减振实验通常只在新设计试制减振器时才停...
在选择弹簧减震器时,应该根据机器设备的净重量来选取合适型号和规格。一般而言,弹簧减震器应该承受高于20毫米的机械设备表面变小量,但不得超过...
离心式水泵弹簧减震器的操作步骤说明如下:弹簧采用纯煅造方法制成,具有很好的弹性,可以用于小水泵的密封性和减震。安装时须注意,不能出现偏位...